Horse Trailer Trader - A World of Selection  
Login   |  Favorites

New Bumper Pull Horse Trailer

2026 Bar M Trailers SS-30-W




Call for Price

    

Dealer Stock #: 45733
Horses: 3
Hitch Type: Bumper Pull
Construction: Aluminum

LWH: W: 6.90' H: 7.60'
GVW: 10000




Description:
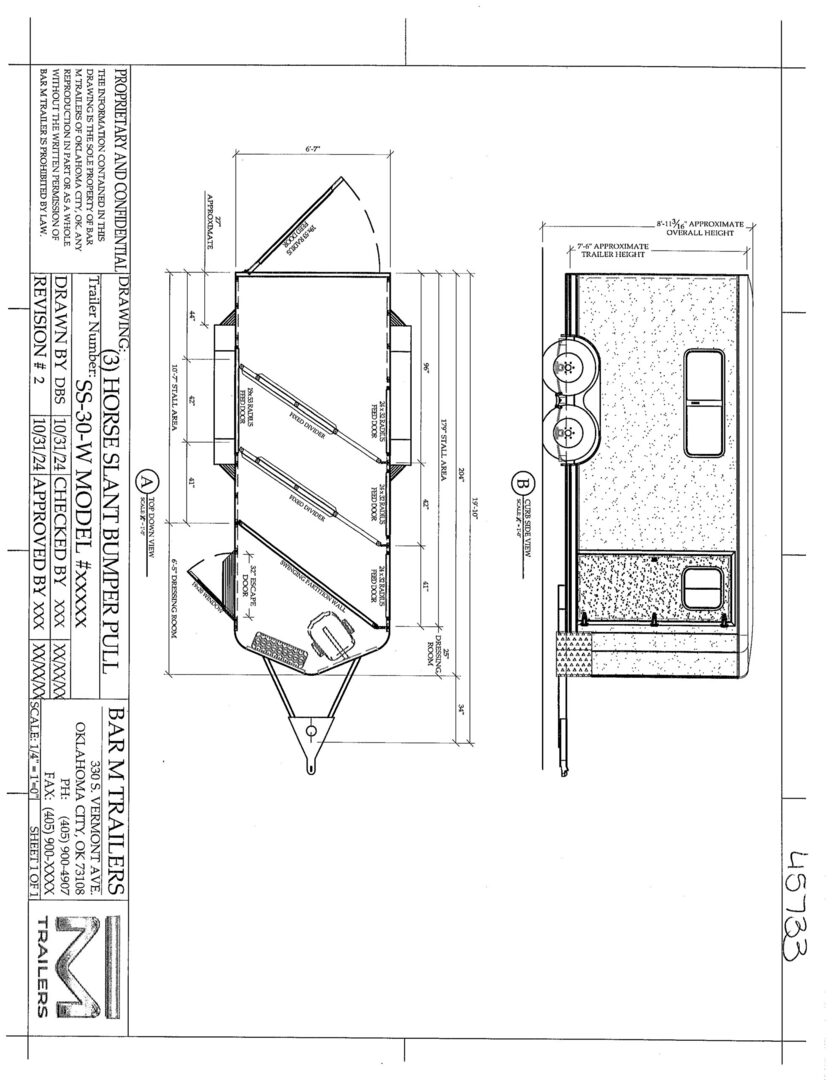
View Inventory: https://leonardtrailers.com/inventory/45733 Stock# 45733 New 2026 Bar-M SS-30-W Bumper Pull Horse Trailer  At Bar-M Trailers, we value creativity, innovation, and durability. We believe in creating products that are not only good for the animals but also benefit the user. We are proud to be built in the USA! Model:SS-30-W Warranty: 7yr-Structural Model Info Type: 3 Horse Slant with Stock Sides (Head and Butt) Standard Axles: 5,200# spring axles Tires: “E” range tires Standard Features Aluminum frame Aluminum side wall posts and aluminum roof bows Sidewall posts: 1 1/2” deep Typically spaced on 16” centers Unit height: 7’-6” tall Flooring cross members: 12” centers (commonly) 2x6 pressure-treated wood floor with rubber mats One-piece, seamless aluminum roof Exterior aluminum skin: .040 (white is standard) Nose sheets are riveted Horse Area Interior Standards HDPE smooth black high-impact wall liner on road and curb side HDPE liner also on rear side of swing wall to dressing room (1) Slim-line LED stall light per stall (mounted in cove on curb side) Swinging partition between front horse stall and dressing room (2) Horse ties per stall (1) Horse divider between each stall Stall spacing: 42” between stalls Exterior Standards Fixed-mounted camper step at dressing room door Lockable entry door with window (curb side) Single swinging rear door with sheeted high and low air gaps Rear door: (4) hinges on curb side Single aluminum cam bar on road side Drip cap above dressing room door (aluminum angle) Optional Upgrades Running boards Charcoal skin upgrade from white skin Upgrade to aluminum wheels Upgrade the floor to Shelby flooring  Upgrade to 6 lug 5,200# torsion axles and 15” load E tires  Add a ramp over rear doors  Add an escape door in the first stall, head side  We offer outstanding financing options, accept trades, and can arrange nationwide NO HASSLE delivery! Inquire today for more information! (888) 333-6613 **We believe these specifications to be accurate. Any discrepancies are unintentional. Please verify information with a sales associate prior to purchase.**< Stock Number:45733


Contact Leonard Truck and Trailer



View All Dealer Inventory

Leonard Truck & Trailer | Trusted Horse Trailer Dealer Since 1963

For over 60 years, Leonard Truck & Trailer has led the way in horse trailer sales, serving customers nationwide from our Northeast Ohio MEGASTORE. As one of the largest trailer dealers in the country, we offer 700+ new and used trailers with flexible custom order options.

Why Choose Leonard Horse Trailers

We’re an authorized dealer for top brands like Bloomer, Cimarron, Hart, SMC, Sundowner, Bison, Shadow, Trails West, Valley, Wilson, and more.

We offer:

  • Bumper pull and gooseneck horse trailers
  • Living quarters horse trailers
  • Livestock trailers for farms and shows
  • Rent-to-own trailer programs

We Haul More Than Horses

We also stock:

  • Enclosed trailers for motorcycles, ATVs, and snowmobiles
  • Car haulers, dump trailers, utility and equipment trailers
  • Lowboys, detachable necks, and paver specials for heavy equipment

Call 877-888-6067 or explore our inventory online to see why buyers choose Leonard Trailer Sales in North Jackson, Ohio.