Horse Trailer Trader - A World of Selection  
Login   |  Favorites

New Gooseneck Cargo Enclosed

2026 Logan Coach Sporthauler 10x10 Open LQ w/18' Enclosed Garage




$79,120.00

    

Dealer Stock #: 14229
Hitch Type: Gooseneck

Has Living Quarters




Description:
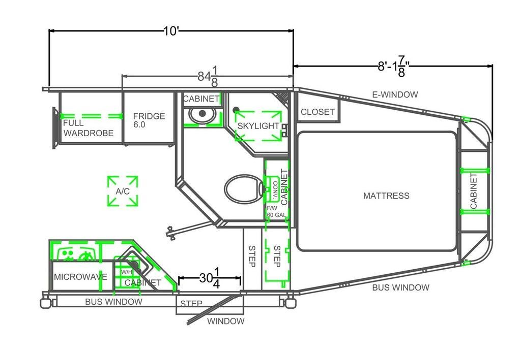
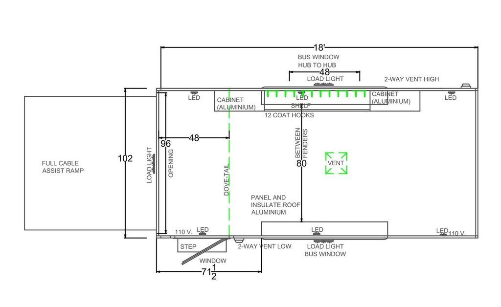
ON ORDER - Coming April 2026 2026 Logan Coach Sport Hauler 10X10 Open Floor Plan with an 18’ Enclosed Garage You Bring The Horse Power. We’ve Got The Trailer. The SPORT HAULER trailer was designed and built with the input of world class riders to produce a high end snowmobile trailer with all the features needed to get you to and from the perfect powder in comfort, style, while keeping you and your gear warm and dry.STRUCTURAL 7’ 6” Tall 8’ 6” Wide .040 Aluminum One Piece Roof Skin W/ Aluminum Cove And Roof Bows On 24” CentersWall Posts On 24” Centers / Floor Cross members On 16” Centers 4’ Dove Tail48” Spread AxlesRear RampWHEELS, TIRES and AXLES8000# Dexter Torsion Tandem Axles 22.5 Degree Down Axles Provider Brand Tires - G Rated/14 ply 235/85/R16 Self Adjusting Brakes 4-Wheel Electric Brakes EXTERIOR Enclosed Front Roll Up Door (Under GN) Aluminum .050 Side Sheets Attached W/ 3M Vhb Bonding SystemVortex Rubber Coating Under GN / BP Tongue37” Hd Man door W/ Window Over Drivers Side AxlesAluminum Mill Finish Taillight Trim Pkg CARGO AREA 1 Folding Sofas Rear Ramp w/Cable Assist (81” Interior Door Load Height) Aluminum Wall Mount 36” Storage Tray Dual 33” Aluminum Cabinets w/ Shelf Aluminum Tie Down / Strap Rack Hanger Aluminum Lined 3/4” Plywood Floor w/Rubber Coin Flooring (Insulated) 2 - Aluminum Flow Thru Vents Crank up Camper Vent 12 - Coat Hooks APPLIANCE6-Cubic Ft. Refrigerator 0.7 Cubic Microwave 2-Burner Cooktop Air Conditioner Furnace Flat Screen TV with Swing Arm (in bed area) TV Antenna with Built-In Radio Antenna INTERIOR DECOR Interior Package – Honey Wood Stain Teahouse Earthan Wall Board NO Slide OutVintage Oak Vinyl Floor Soft Touch Day/Night Shades Queen Size 6” Memory Foam Mattress PLUMBING 60-Gallon Fresh Water Tank 38-Gallon Black Tank38-Gallon Grey Tank Suburban 6-Gallon DSI Water HeaterELECTRICALCD/DVD Player & RadioLight Fixtures Exterior Power Kill Switch BATHROOM Porcelain Toilet Radius Shower with Glass DoorSolid Wood Bathroom DoorPower VentSkylight Above Shower CABINETSSolid Wood Knotty Alder Cabinets with Flat Panel DoorsNickel Cabinet Hardware WARRANTY8-Year Structural2-Year Hitch To BumperLimited Lifetime Corrosion Warranty on Galva-Strong Frame All Horse Trailers, will be ran through our service department AFTER they are sold. Pickup & Delivery time is based on the service department’s schedule at the time of purchase.*Please review all features with a salesperson. We try our best, but sometimes features and dimensions get mislisted. Thank you!*Akins Trailer Sales541-995-4884* Located in Harrisburg, Oregon* Financing Available* Trade-Ins Considered www.akinstrailersales.com


Contact Akins Trailer Sales



Payment calculator

$ / month

Estimated payment for
Check with dealer or lender for actual payments.

Down Payment

Trade-in Value

Payoff Amount

Trailer Price


Term

Interest Rate (APR)
Sales Tax Rate


View All Dealer Inventory

Akins Trailer Sales was started in 2006 by Thad and Rochelle Akins. Thad at the time was working for a large RV manufacturer. The manufacturer asked him to do the due diligence on a mid-West based RV company they were interested in acquiring. While touring the RV manufacturer’s facilities, it was brought to Thad’s attention that the company also owned a horse trailer manufacturer. That company was Bison Coach. The Akins’ were in the market for their first living quarter trailer and really liked what they saw for the price. They decided to purchase a trailer for themselves and started hauling it to all the PRCA and Amatuer rodeos they were competing in. At nearly every stop they were approached by other competitors and spectators asking about their trailer. There were no Bison dealers in the Northwest at the time, so Thad and Rochelle worked a deal with Bison Coach to represent their trailers on the side. They started out with a single trailer to display at their house…their own personal trailer.

Since that time Akins Trailer Sales has grown to represent 5 manufacturers and now has over 70 horse trailers in stock. We are still a small family run business that tries to do everything the right way. We offer a full service shop and have 7 full time employees to help answer any questions that may arise. We take pride in selling reliable trailers at a fair price and making sure our customers are taken care of regardless of where they’re located. We sell trailers all over the United States as well as Australia, Canada, Europe and Mexico. If you’re looking for a new or used horse or stock trailer please give us a shot to earn your business.